28251 Tierra Vista Road

$ 787,000

Temecula, CA 92592

Closed

5 Beds, 3 Baths, 2,676 sq. ft.

Sold: 11/22/2023


Listing provided by agent Daryl Fishbough BRE# 01400382 at Cypress Realty & Mortgage.


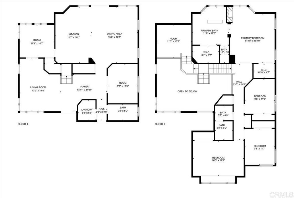
Welcome to this stunning 5-bed, 3-bath home situated in one of Temecula’s most desirable neighborhoods Rancho Highlands and just a short drive to Old Town. Upon entering the main residence, you are welcomed by a custom iron staircase leading up to Bedrooms and bonus loft space not included in the listed sq footage. Dual separate office spaces downstairs are great for remote work or study setup. A full bathroom on the main level provides the opportunity to have one of the office spaces converted into a main floor guest room. The well-appointed kitchen comes complete with a 5-burner cooktop, refrigerator, quartz countertops, opening up to the family room and spacious backyard. The home features four bedrooms upstairs, each offering comfort and privacy. The master bedroom is a true retreat, featuring a generously sized bedroom with large windows, duel his and her closets, and an en-suite bathroom. Outside, the nearly 10,000 sq ft pool sized yard provides endless possibilities and provides a peaceful sanctuary for relaxation, whether it's hosting barbecues, playing basketball or simply unwinding on a sunny day. The side yard is one of only a handful of homes in the neighborhood that provides the ability to store your toys behind the fence. The community has playgrounds, a pool, pickle ball and tennis courts and a very low HOA of $100 a month. Recent upgrades in the past year include; Reroof with double paper providing a 20 year warranty. Luxury Vinyl laminate throughout the main floor, carpet installed throughout the upstairs, Window blinds replaced on all windows. Professionally painted cabinets and Quart Countertops. Upgrades in the past 5 years include: Dual 3 ton 15 SEER Carrier A/C with Nest controls, Vinyl Fences installed on the perimeter with 8 ft wide gate. Alumawood patio cover, Custom Concrete Pavers and Metal Fire Pit.

Aerial View:

Quick Facts:

  • Home Size: 2,676 sq.ft.
  • Price/sq.ft.: $298.58
  • Lot Size: 9,831 sq.ft.
  • Built in 1995
  • Garages Spaces: 3

Map:

Property Details:

Assessor’s Parcel Number 944341013
Homeowner’s Association Rancho Highlands
Days on Market 797
Last Modified November 27th at 2:03pm
Listing Status Closed
Price Per Sq. Ft. $298.58
Property Type Single Family Residence
Sewage System Public Sewer
Virtual Tour Click here
Water Source Public
Year Built 1995
HOA Dues $100.00

Interior Features:

Bathrooms 3 full baths
Bedrooms 5
Cooling Central Air
Floorspace 2,676 sq. ft.
Laundry Facilities Gas & Electric Dryer Hookup, Washer Hookup

Exterior Details:

Acres 0.2257
Lot Dimensions 148x81x127x62
Lot Size 9,831 sq. ft.
Garage Spaces 3

School Information:

School District Temecula Unified

Nearby Schools in Temecula

School Name Parent Rating Distance Map

3.0 mi.

2.6 mi.

3.7 mi.

School data provided by GreatSchools. School service boundaries are intended to be used as reference only. To verify enrollment eligibility for a property, contact the school directly.



Updated: 2023-11-27 14:03:07

Any questions? Contact Tom Bashe.